建造师
一级建造师 二级建造师
1、工程类图纸识图 1先看现场平面布置图,了解工程概况及周围建筑对本工程的影响#81942再看施工组织,大概了解工程的具体施工情况#81...
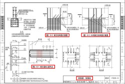
4个222个22 表示上铁筋两排筋,第一排是4根22,第二排是2根22 2个224个22 表示下铁筋是两排,第一排是2根22,第二排...
1、工程地质条件是指工程建筑物所在地区与工程建筑有关的地质环境各项因素的综合这些因素包括1 地层的岩性是最基本的工程地质因素,包括它们的...
各涂料、原材料及相关单位:兹定2017年10月18日-20日在山东召开“2017年山东涂料工业发展论坛”(内容详见《2017山东...
悬臂式通过查询水工建筑物模拟试卷相关信息得知,当水闸翼墙高度为6~10m时,用悬臂式挡土墙合适翼墙是为保证涵洞或重力式桥台两侧路基边坡稳...
3网络视频录像机 网络视频录像机是一种可以通过网络远程监控的设备根据不同的品牌和型号,价格也有所不同一般来说,普通的网络视频录像机价格在...
顶层+阁楼装修案例相对较少,为了响应广大业主要求,收刮一个“阁楼装修案例”供大家前来参考,希望能帮到你哦!跟着小编来参。 那我们就证明这...
点式玻璃幕墙价格表点式玻璃幕墙,全称为金属支承结构点式玻璃幕墙,是由玻璃面板点支撑装置和支撑结构而构成的点式玻璃幕墙由于具有钢结构的稳固...
吊顶变形缝是安装在吊顶天花板位置的变形缝,分为平面型吊顶变形缝和转角型吊顶变形缝常用款式用卡锁型变形缝和盖板型变形缝,详见下图。 变形缝...
来源:掌上台州 吊车之家版权归原作者所有,如有侵权请联系我们 原标题:路桥130吨大吊车侧翻,吊车老板当场身亡!请敲响安全警钟!...
阁楼论坛主要是以综合性为主,以游戏为辅,涵盖面比较广例如文学专区主要有情感文学,小说,笑话休闲时尚主要定位于休闲涉及美女贴图,我型我秀,...
1、1点击左下方的命令运行栏,输入regedit命令如图所示2打开注册表编辑器后点击编辑标签如图所示3点击查找命令如图所示4查找目标输入...
其实,所谓的图库也是一个dwg文件只是文件里面画的每一个元件符号都被定义成了块在CAD界面下1在命令行里直接输入ADC然后按回车键或者空...
而图中,中支座两边大小跨上部纵筋是相同的,小跨却也原位标注了相同的钢筋所以我说16G1011 替代11G1011混凝土结构施工图平面整体...
水文地质学是研究地下水的科学地下水主要是指赋存于岩石空隙中的水水文地质学的任务是研究地下水的赋存形成条件水量和水质时空的变化规律,同时还...
提取码1234 本图集由从事建筑结构设计40余年的高级工程师编写,精选了16个钢结构工程实例,包括高层建筑多层建筑厂房建筑特殊建筑等类型...