注册建造师网注册建造师网
  • 登陆本站

    立即登录

    0
    文章
    0
    评论
    0
    积分
  • 首页
  • 一级建造师
  • 二级建造师
  • 造价工程师
  • 监理工程师
  • 安全工程师
  • 消防工程师
  • 文库
登录
  • 一级建造师跟二级建造师的区别是什么,一级建造师和二级建造师区别
    一级建造师

    一级建造师跟二级建造师的区别是什么,一级建造师和二级建造师区别

    选择一建还是二建挂靠比较好? 建造师分为一级建造师和二级建造师。一级建造师含金量高、难度系数大,挂靠价格高。二级建造师含金量稍低、...

    2024-09-14
    0 375
  • 深圳注册监理工程师深圳注册监理工程师招聘信息
    监理工程师

    深圳注册监理工程师深圳注册监理工程师招聘信息

    1、书一定要看完,至少看两遍,别忘了买大纲,按照大纲上划分的掌握、熟悉、了解的内容,分配好精力和时间,该死记硬背的就要死记硬背,没有...

    2024-09-14
    0 380
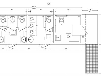
  • 公共厕所平面图,卫生间地面改造最简单材料
    工程资源

    公共厕所平面图,卫生间地面改造最简单材料

    1、公共厕所的平面图,谨供参考。 2、12轴交ad轴为男厕,23轴交ad轴为女厕,地面标高为±0000,室外比室内低30公分,男女地槽为...

    2024-09-14
    0 489
  • 二级建造师成绩出来了吗现在二级建造师成绩出来了吗
    二级建造师

    二级建造师成绩出来了吗现在二级建造师成绩出来了吗

    二级建造师考试成绩一般在考后23个月左右时间出来参加全部3个科目考试的人员必须在连续两个考试年度内通过全部应试科目免试部分科目的人员必须...

    2024-09-14
    0 344
  • bim工程师招聘网,山南bim工程师
    BIM工程师

    bim工程师招聘网,山南bim工程师

    BIM中心执行经理,工程师中级工吴佳骏长沙市规划设计院有限责任公司BIM管理工程师,工程师建设领域获奖的个人与集体;BIM技术在山南人民...

    2024-09-14
    0 323
  • 安徽省消防工程师报名入口,安徽消防工程师报考条件是什么
    消防工程师

    安徽省消防工程师报名入口,安徽消防工程师报考条件是什么

    1、2022年二级消防工程师报名入口官网各省人事考试网或中国人事考试网可访问各省人事考试网进行网络注册,并按照网络提示填写报考信息上传照...

    2024-09-14
    0 360
  • 注册会计师和岩土工程师哪个好注册会计师和注册岩土工程师哪个好
    岩土工程师

    注册会计师和岩土工程师哪个好注册会计师和注册岩土工程师哪个好

    考证含金量由高到低排行榜是注册会计师教师资格证一级消防工程师法律职业资格证一级建筑师特许金融分析师执业医师资格证书岩土工程师安全工程师注...

    2024-09-14
    0 395
  • 注册监理工程师有培训机构,注册监理工程师培训机构知乎
    监理工程师

    注册监理工程师有培训机构,注册监理工程师培训机构知乎

    1、2024监理工程师考试培训机构比较好的有优路教育学天教育环球网校等至于哪个好其实是见仁见智的事,考生要选择自己需要适合自己的机构1优...

    2024-09-14
    0 327
  • 历年安全工程师考试真题2009年安全工程师
    安全工程师

    历年安全工程师考试真题2009年安全工程师

    注册安全工程师的社会地位和待遇在未来五六年内,将达到不低于注册会计师注册律师的水平,但是国家局没有明说为什么国家局不明说因为如果国家局明...

    2024-09-14
    0 355
  • 欣旺达结构工程师欣旺达结构工程师面试
    结构工程师

    欣旺达结构工程师欣旺达结构工程师面试

    本人从欣旺达出来不久,住宿的话有两人间到八人间不等,看你被分到哪,厂里的宿舍基本是4到8人一间宿舍,如果在职是个经理及以上职位的话,会有...

    2024-09-14
    0 371
  • 造价工程师考土建还是安装,造价工程师考土建还是安装工程师好
    造价工程师

    造价工程师考土建还是安装,造价工程师考土建还是安装工程师好

    如果你对建筑结构土木工程等领域感兴趣,那么土建方向可能更适合你如果你更关注建筑的内部功能和使用舒适度,那么安装方向可能更有吸引力你的教育...

    2024-09-14
    0 316
  • 一级建造师和注册造价师,一级建造师和注册造价工程师哪个含金量
    一级建造师

    一级建造师和注册造价师,一级建造师和注册造价工程师哪个含金量

    2017年造价工程师考试报名已经全面展开,很多小伙伴对它还不是很了解,从优路教育处了解到大家最关心的是挂靠问题,今天我们就和大家分享...

    2024-09-14
    0 311
  • 混凝土排水管图集混凝土排水管图集道客
    工程资源

    混凝土排水管图集混凝土排水管图集道客

    1、钢筋混凝土排水管按混凝土管内径的不同,可分为小直径管内径400毫米以下中直径管400~1400毫米和大直径管1400毫米以上按管子承...

    2024-09-13
    0 460
  • bim工程师总监,bim工程师职位描述
    BIM工程师

    bim工程师总监,bim工程师职位描述

    二BIM技术工程师 此类人员数据精通软件操作,能够独立解决技术上的诸多问题,而且对BIM有一定的认识再加之,有了几年的工作经验,不但在技...

    2024-09-13
    0 325
  • 建设部造价工程师报考条件要求,建设部造价工程师报考条件
    造价工程师

    建设部造价工程师报考条件要求,建设部造价工程师报考条件

    有的省份报考造价师时,需要有造价员才可报考,比如北京就是凡中华人民共和国公民,遵纪守法并具备以下条件之一者,均可申请参加造价工程师执业资...

    2024-09-13
    0 403
  • 注册安全工程师企业要求数量,注册安全工程师企业
    安全工程师

    注册安全工程师企业要求数量,注册安全工程师企业

    注册安全工程师具有专业的安全知识和技能,能够对企业的安全生产进行全面的评估和管理,从而有效降低事故发生的概率注册安全工程师不仅负责日常的...

    2024-09-13
    0 333
首页 上一页 759 760 761 762 763 764 765 766 767 下一页 尾页

正在加载...

没有更多内容

加载错误

Copyright 2019-2022 www.erjian.cc All Rights Reserved Powered by 注册建造师网 | 滇ICP备2022003306号-2