公共厕所平面图,卫生间地面改造最简单材料
- 工程资源
- 2024-09-14
- 544
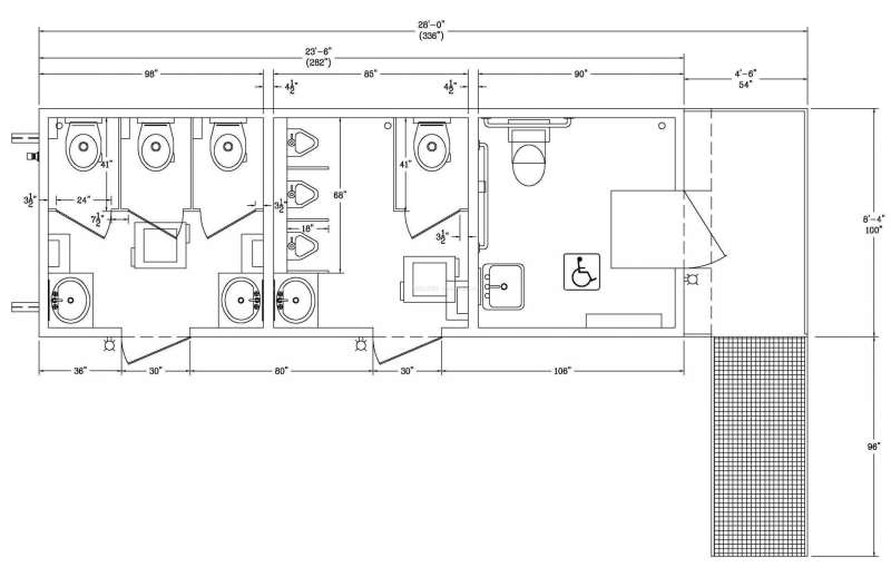
1、公共厕所的平面图,谨供参考。
2、12轴交ad轴为男厕,23轴交ad轴为女厕,地面标高为±0000,室外比室内低30公分,男女地槽为25公分,坡度看不清,窗户1200×900 2个 1800×900 4个,一米一坑,说的够直白个,纯手机打字,一样能帮到你。
3、要说空间尺寸啊洁具之间有最小距离的,还要避让结构角柱等先出平面图数据。
4、旅游景区里的公共厕所平面图,尺寸长度和宽度的话,长一般都是五米一宽是四米。
5、1公共卫生间的阻断尺寸是15米2基本标准是这样的,大便厕位长度是1米15米左右,宽度是085米12米,如果含小便池深度是075米,宽度是07米,坐便器占地较小,一般在0708之间3公共厕所的建筑必须通风采光面积与地面面积一般不能于1比8,当占地面积不能满足要求时可。
6、更是一个与自然对话融入生活的艺术装置,展现了人性化与科技的完美融合想要了解更多关于公厕设计的亮点,可以探索深圳南头公共洗手间北京国际雕塑公园公共厕所潜望镜厕所设计等案例,每座公厕都在其独特的地理和文化背景下,讲述着设计的故事期待更多这样的创新设计,为城市生活增添更多美好瞬间。
7、写字楼的中心如同人的心脏,至关重要,因此厕所千万不要设在写字楼的中央,特别是公司的主要领导办公室不可正对厕所在办公室风水中,厕所布局是不可以忽视的一环公共卫生空间是私密性要求较高的空间它所拥有的设备有洗手盆抽水马桶等,并且在卫生器材的贮藏配置上应给予充分的考虑那么,办公室。
8、1首先我们来了解一下套间布局吧,其实套件布局就是把洗手盆和储物柜独立出来,组合成“外间”,而“里间”就是坐便器以及淋浴这样是可以很好地起到干湿分离的功能,也减少了我们在洗完澡之后清洁卫生间的麻烦,是非常好的一种布局2开放式布局是现在很多的年轻人比较喜欢的布局,它们或者完全开放。
9、规格高一些的四合院还设有厕所,这些内设的厕所一般都被安排到西南角,按风水的说法,西南为五鬼之地,建厕所可以用秽物将白虎镇住,从实用的角度看,厕所建在西南方适应了西北东南风向,可防臭味在院内扩散,但大多数居民如厕大多在胡同里的官厕即现在说的公共厕所。
10、不用计算,乡村公共厕所使用频率远比城市的免费公厕小,可选用化粪池03S702图集较小的有土覆盖的8m#179左右就行 百度文库轻松下载html。
11、应该是一个主卫,一个客卫吧,这个看需要,家里人多的话,就保留两个卫生间的好,主卫在主卧里,方便夜里起夜用客卫一般在离客厅近的地方,一般在过道上一般家庭装修,客卫都是一个重点,因为它是用的人最多的厕所一般有条件,都会做干湿分区,现在人的生活节奏很快,如果不做干湿分区,早上。

12、首先,最大的问题是厕所问题,特别是女厕,在一些公共地方,女厕往往排长队,而男厕基本没人上,常常出去旅游或者吃饭等都会遇到这样的问题,女生上厕所又比较慢,常常排长龙,这样一起出去的朋友或者家人总需要等待,连累了一群人,所以在公共设施设置中,女厕是否可以设计得大一点这是一个重点问题。
13、取消餐饮服务场所的公共场所卫生许可证,餐饮服务许可证是否有效 餐饮服务许可证改为食品经营许可证了,餐饮行业只需办理食品经营许可证就ok了! 谁知道如何快速办理餐饮服务许可证 首先,你应该在装修之前,带着平面图到卫生执法监督所管辖科室,让人家看看你的布局流程合理不,万一有不对的地方先说,省得不合格你重新改。
14、办公桌右面靠窗,座位背靠厕所墙 镜子是起到反射作用的,在风水学上是有一些讲究但题主的描述不是很确切,所以不好下结论,建议提供平面图及镜子尺寸施工方面的建议,如果不是非常厚重的镜子,可以使用比较厚的双面胶直接粘在墙面上,这样可以避免在墙面打孔或在镜面上钻孔在风水学上,鱼缸的摆放。
15、规格高一些的四合院还设有厕所,这些内设的厕所一般都被安排到西南角,但大多数居民如厕大多在胡同里的“官厕”即现在说得公共厕所 编辑 花园 大一些的四合院通常会有花园 编辑 室内陈设 中堂 放大 中堂 四合院的正房是一家之主居住的地方,正房的明间即中间一间,也称为中堂通常在明间正中排放一八仙。
16、这个要看是什么人坐在这个办公室里面,如果是财务室的话是没有什么大问题的,但如果是其他的建议要化解一下,就可以摆放大叶植物等等的来化解。
17、3篮球馆羽毛乒乓的公共卫生间,如果在一层,公共卫生间男女34个蹲位,男小便斗34个如果在两层,如可能,各层分设公共卫生间,男女23个蹲位,男小便斗23个 4最重要是要根据你的平面图综合考虑如果可以,在你初步完成设计时,一定要找使用者去提出修改建议,毕竟客户的实际。

免责声明: 本站提供的任何内容版权均属于相关版权人和权利人,如有侵犯你的版权。 请来信指出,我们将于第一时间删除! 所有资源均由免费公共网络整理而来,仅供学习和研究使用。请勿公开发表或 用于商业用途和盈利用途。
本文链接:http://www.erjian.cc/ziyuan/26680.html
发表评论