02s515排水检查井图集,02s515排水检查井
- 工程资源
- 2023-03-28
- 2808
1、我看到你的新提问,大慨知道你的疑问,首先检查井是砖砌还是混凝土,图集没有规定,由设计者根据使用功能要求决定承载力埋深及稳定性防水性能使用年限环保要求,不过现在设计已经很少用砖砌特别是市政设施几乎。
2、02S515没有分册,所以02S51513里这个13代表页码,即第13页。
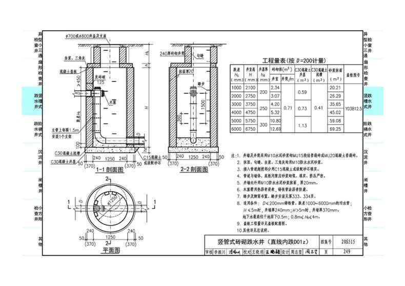
3、02S515 排水检查井,井底流槽做法如下。
4、有污水的,不是只是穿过,是污水跌到这个井里再从这个井中流入下一个管段,污水设置检查井一是为了一段距离能检修清通方便,二是为了转向和接入其他管段详细井的构造见排水检查井02S515。

5、02S515及06MS201排水检查井标准图集不同点是06MS201增补了混凝土摸块式及预制装配式不同结构形式的检查井,增加了使用范围,该两册均为现行有效版本,设计可通用同用至于地方标准图集,如当地主管部门有明文规定和要求。
6、是的,排水重在将水排出去,检查井底部高于管底的话,水就会存留在管道里,如果检查井底部低于管道底部,水就会存留在检查井内,检查井底部至少要跟向下排水的雨水管或污水管的底部保持一个标高,来水的管可以高出检查。
7、骑马井的上半部分井壁和井筒部分采用人工挖孔桩的施工原理,挖孔然后浇筑钢筋混凝土护壁下半部分井室部分参照排水检查井图集图集号02S515中直线型砖砌污水检查井井室的样式进行施工操作要点1 放线定点。
8、你的图号是不是写错了 有关检查井的图集02S515b排水检查井 02S515a排水检查井 050608均有检查井图集,上面的两个图集在“能源时间-建筑节能网”均有,你可以注册后免费下载。
9、此工艺方法实施后取得了显著的经济效益和社会效益,是对污水管道顶管检查井施工的一次革命骑马井施工原理主要是根据人工挖孔桩的施工原理并参照排水检查井图集图集号02S515整合而成的骑马井的上半部分井壁和井筒。
10、02s515排水检查井图集规范第二十八页见下附件,2833×2005像素图片,下载右键单击目标另存为后查看更清晰,希望对您有点帮助。
11、02S515排水检查井图籍 txt全集小说附件已上传到百度网盘,点击免费下载。
12、02S515 排水检查井,38页。
13、一价位一般的可能人工材料在800-1000二简单介绍污水检查井是排水管道系统上为检查和清理管道而设立的窨井同时还起连接管段和管道系统的通风作用相邻两井之间管段应在一条直线上,因此,在管道断面改变处坡度。

14、其实就是用圆柱的体积公式,体积=底面积X高假设检查井内半径为R,混凝土厚度为b,井深度为h指混凝土部分,则混凝土体积为=314*R+b*R+b*h314*R*R*h,可以简化为314*2R+b*b*h,公式中。
15、2832×2049像素图片,请点击放大后下载右键另存为,本地保存后再看,可看到高清晰图片。
免责声明: 本站提供的任何内容版权均属于相关版权人和权利人,如有侵犯你的版权。 请来信指出,我们将于第一时间删除! 所有资源均由免费公共网络整理而来,仅供学习和研究使用。请勿公开发表或 用于商业用途和盈利用途。
本文链接:http://www.erjian.cc/ziyuan/12579.html
发表评论