建筑工程设计图纸,建筑工程设计图
- 工程资源
- 2023-04-29
- 909
一套完整的建筑图纸,根据其专业内容或作用的不同,一般包括1图纸目录包括每张图纸的名称内容图纸编号等,表明该工程图纸由哪几个专业的图纸及哪些图纸所组成,便于检索和查找2设计总说明主要说明工程的概况和总的。
1图纸目录包括每张图纸的名称内容图纸编号等,表明该工程图纸由哪几个专业的图纸及哪些图纸所组成,便于检索和查找2设计总说明主要说明工程的概况和总的要求内容一般应包括A设计依据如规划限制设计规。

4建筑工程施工图它是设计工作的最后成果,是进行工程施工编制施工图预算和施工组织设计的依据,也是进行施工技术管理的重要技术文件5建筑施工图建筑施工图主要反映一个工程的总体布局,表明建筑物的外部形状内部布。
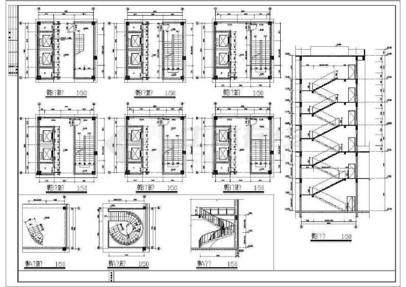
建筑工程建施图一般有正立面图剖立面图楼梯剖面图,这些图有工程立面尺寸信息建施平面图结施平面图上,一般也标有本层标高梁表中,一般有梁表面标高基础大样图其它细部大样图,一般也有标高注明通过这些施工图。
1总图部分总平面图竖向设计图总平面定位图规模不大时可以合在一张图上总平面消防设计图非必要图纸,复杂建筑建议做此图2平面图各层平面图,包括机房屋顶平面图纸太大时,可能需要分区出图。
7厨房卫生间大样 地面排砖图墙面排砖图吊顶分格图 8结构图 如有增加阁楼拆改加固等专案,应有结构图纸和简略受力计算书9外加工图纸 自行设计的铁艺金属楼梯栏杆栏板 如何完整的制作建筑工程图纸。
各种洞口有无遗漏7建筑做法是否合理,防水材料,涂料,瓷砖等二建筑图纸符号大全在建筑设计图中,l表示是梁ll表示是连续梁ql表示圈梁jl表示基础梁tl表示是梯梁dl表示是地梁,z表示柱gz表示构造柱。
首先你要有基本的建筑知识,对建筑工程有些了解,才能说来识图,现在假如你有些建筑的基本知识,那么建筑施工图就是人们把一个物体从三个角度来表示它的全部内容平面,立面,剖面,每张图设计人员都会力求用各种表示。
建筑设计图纸首先应按照不同的阶段予以区分建筑工程设计文件编制深度规定第103条民用建筑工程一般应分为方案设计初步设计和施工图设计三个阶段每个阶段的图纸,再按不同专业进行区分总图建筑结构给排水。
但是和机械图纸差距大了,一个是米为单位,一个是以毫米为单位,你说一样吗 建筑工程中初步设计图纸和技术设计图纸有什么区别? 建筑工程中初步设计图纸是将文字性方案及草图结合本专业规范设计的图纸技术设计图纸是在初步。
小柱高度看该工程所标示的层高减去圈梁的高度后加上板面的厚度,因为圈梁与板面是浇筑在一起 5如在建筑设计图中m5水泥砂浆砌mu10贝灰砂砖“m5”表示水泥砂浆的强度等级,“mu10”表示贝灰砂砖的强度等级mu10代表贝灰砂砖的。

问题三怎么看建筑工程图纸?里面的内容都什么意思? 买一本土木工程制图,很多书店都有卖的,建筑类的书店肯定有!自己看一看就行了触其实没有很多东西,先看看平立剖面图,弄清楚三者之间的关系,培养一下空间想象能力,大方向上弄。
至少需要设计单位出8套图纸施工图审查1套 建设局规划局房管局消防人防等各1套 建设单位施工单位监理单位各1套 招标1套 以上单位大多不要设备图,他们只关心建筑结构水电暖等,设备图根据你自己。
1建筑施工图主要用来表示房屋的规划位置外部造型内部布置内外装修细部构造固定设施及施工要求等它包括施工图首页总平面图平面图立面图剖面图和详图2建筑工程一般用,AutoCAD软件画图3计算机辅助。
施工图是用以指导施工的图纸,包括建筑结构水暖电气等专业,深度要比方案图高,细部尺寸,构造做法都要详细表述清楚建筑工程图纸分为 1建筑施工图包括建筑总平面图建筑平面图建筑立面图建筑剖面图和建筑详图2。
免责声明: 本站提供的任何内容版权均属于相关版权人和权利人,如有侵犯你的版权。 请来信指出,我们将于第一时间删除! 所有资源均由免费公共网络整理而来,仅供学习和研究使用。请勿公开发表或 用于商业用途和盈利用途。
本文链接:http://www.erjian.cc/ziyuan/13533.html

发表评论