11g101-111g1011图集钢筋锚固长度表格
- 工程资源
- 2022-12-07
- 1361
11G1011混凝土结构施工图平面整体表示方法制图规则和构造详图现浇混凝土框架剪力墙梁板,95页;当然可以用,在新版未出台前,在没有被替代前,都有效。

柱箍筋加密区为柱长边尺寸柱净高的16500三者中最大值,根据你实际情况,柱子净高以及柱长边尺寸,两者对应表中就得出加密区高度表中曲线将表中数值分成了三个区间,分别对应加密区高度中三个值,左上第一个区间是;其余钢筋伸入支座的长度,对于埋入砌体的挑梁不应小于 2L3L为外伸挑梁埋入砌体墙内的长度,对于混凝土结构中的挑梁,在支座里应满足按受拉钢筋要求的锚固长度挑梁埋入砌体长度与挑出长度之比宜大于12当挑梁上无。

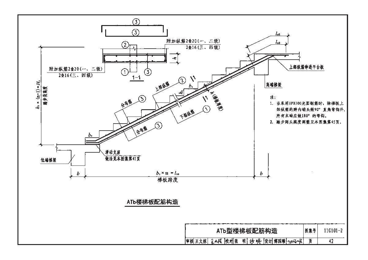
钢筋国标11G1011第53页见下附件1169×827像素图片,请点击放大后查看或下载另存为,希望能够帮到你;11g1011未表示以下哪种构件的钢筋构造 答11G1011“未”表示#8205现浇混凝土板式楼梯独立基础条形基础筏形基础及桩基承台构件的钢筋构造若问11g1011表示哪种构件的钢筋构造 则要答你,表示。
当受拉钢筋直径25mm时及受压钢筋直径28mm时,不应采用绑扎搭接抗震柱纵向受力连接构造钢筋,当上层柱钢筋比下层柱钢筋多时上层柱钢筋应该锚入下层12Lae,锚入下层长度由楼板面位置向下开始计算11G1011P57同一;11G1011与12G9011的区别在于全称不一致和表达的施工图中构造和钢筋排布的详细程度不一致从2016年9月1日起,11G1011已作废,由16G1011替代11G1011的全称是混凝土结构施工图平面整体表示方法制图规则和构造。
11G101基本锚固长度如何记忆 有记忆方法吗答1 记住普通钢筋公式, Lab=α×#402y#402t×d 受拉钢筋基本锚固长度Lab2 记住受拉钢筋基本锚固长度LabE的公式,LabE=Lab×ζaE中的抗震锚固;11G1011是国家建筑标准设计图集的编号,图集名称全称为11G1011混凝土结构施工图平面整体表示方法制图规则和构造详图现浇混凝土框架剪力墙梁板,是由中国计划出版社于2011年8月出版的,作者为中国建筑标准设计研。
11g101-1图集57页
11G1011混凝土结构施工图平面整体表示方法制图规则和构造详图现浇混凝土框架剪力墙梁板,没有109页,最后页码106。
N表示梁侧面纵向受扭钢筋 G表示梁侧面纵向构造钢筋 两个的位置所在的位置均为梁侧面,梁高超过450时,设两侧各一根 两者的不同是搭接长度的不同G的搭接与锚固长度可取15d 但N 的搭接长度同梁纵向受拉钢筋绑扎搭接长度。
11G1011不是建筑规范,是国家建筑标准设计图集11G1011混凝土结构施工图平面整体表示方法制图规则和构造详图现浇混凝土框架剪力墙梁板是对03G1011混凝土结构施工图平面整体表示方法制图规则和构造详图现浇。
答11G1011中,钢筋直径25在受拉钢筋基本锚固长度LabLabE表之长度值,不乘受拉钢筋锚固长度修正系数ζa在受拉钢筋锚固长度La非抗震的公式La=ζaLab中ζa也不用乘受拉钢筋锚固长度修正系数在受拉钢筋。
从图集上看22和33是一样的,说明这个支座上的钢筋是2根通长的,第一层有两根挑筋,第二排有2根挑筋,第一排挑筋长度是每边净跨的13,第二排挑筋长度是每边净跨的14另外提示一下,11G1011图集已经被16G。
国标11g101-1
11G1011图集59页节点E是梁柱纵向钢筋搭接接头沿节外侧的直线布置做法平时称梁入柱的做法要求与节点D浑身勿搭界11G1011图集59页节点D是当现浇板厚度不小于100时,也可按B节点方式伸入板内锚固,且伸入板内。
11G1011图集中底板钢筋长短向钢筋摆放顺序是短上,长下支座基础或者基础梁 是柱子的支座,柱子是梁的支座支座内箍筋连续通 过,基础板同理支座梁或墙是板的支座,与梁平行的钢筋不进入梁内基础梁主筋。
免责声明: 本站提供的任何内容版权均属于相关版权人和权利人,如有侵犯你的版权。 请来信指出,我们将于第一时间删除! 所有资源均由免费公共网络整理而来,仅供学习和研究使用。请勿公开发表或 用于商业用途和盈利用途。
本文链接:http://www.erjian.cc/ziyuan/9600.html
发表评论