回转窑图纸,回转窑图纸上A,B,n,R,M带9O度箭头什么意思
- 工程资源
- 2022-12-14
- 965
2检查回转窑各档托轮基础的外观,查看基础是否疏松有无空洞两次浇灌处结合是否紧密,有无分层基础了模板和外露的钢筋是否全部清除地脚孔内的积水和杂物是否全部清理干净 3根据图纸和验收规范检查回转窑各档托轮。
谢谢这么信任我,弹簧板用锚固件固定的我也是在图纸上看到过,个人感觉这个方法不太好,窑子越大运转过程中大齿通过弹簧板传输给窑体的扭矩越大,回转窑在连续运转过程中扭矩是一个变量,这一点你可以通过监测电机电流正波动。

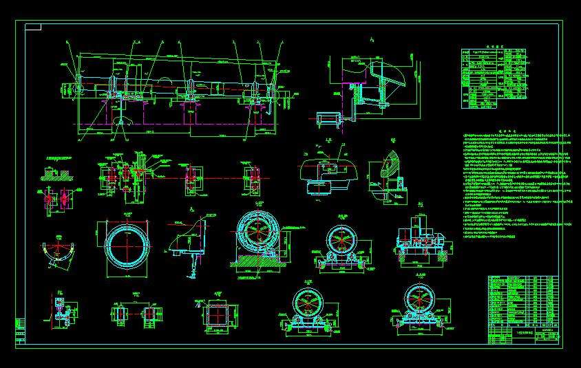
回转窑是水泥厂用于水泥熟料煅烧的主要设备其主要结构是由窑筒体,支承装置,窑头窑尾密封装置,传动装置,进料及煅烧装置组成,是水泥生产工艺中最关键的设备本工程所选用为Ф48*72m配5000td窑外分解炉的回转。
YT16系列回转窑无线测温系统回转窑无线测温设备,采用最新无线通信技术,将热电偶测得的窑内温度数据传送到操作室显示窑温发送器使用电池供电,可同时采集多个热电偶信号它安装在窑体上,随筒体一道转动,由于采取了隔热措施,能够耐受300。
回转窑斜度35度,一般厂家在地基图纸上就有标注。
3路上下限报警输出 可配接各种热电偶热电阻,带485通讯功能标准MODBUSRTU协议具体的回转窑无线测温系统详细参数,和产品外形尺寸安装图纸可以浏览公司网站xasld前后自己补全,手机和电脑均可直接浏览。

熟料来自窑头,窑尾进料,经预热器预热后的原料从窑尾进入回转窑,烧成后从窑头出来,进入篦冷机冷却熟料冷却后的热风由三次风道和窑体进入烧成系统,窑体煅烧所需的热量由煅烧煤喷管从窑头喷入回转窑回转窑,水泥。
一耐火浇注料在水泥回转窑的应用在新型干法水泥回转窑上,耐火浇注料得到了广泛的应用根据窑炉不同的工作环境,应用的耐火浇注料有普通耐火浇注料低水泥耐火浇注料超低水泥耐火浇注料无水泥耐火浇注料钢纤维耐火。
本人于**年进万年厂从事铆焊工作,参加了万年厂的湿法窑冷却机拉链机三机改造,窑尾电收尘改造**年参加了万年第一条干法回转窑生产线的配件制作安装工作**年至**年任工段长,期间带领全工段人员多次参加万年厂。
把生料的预热和部分分解由预热器来完成,代替回转窑部分功能,达到缩短回窑长度,同时使窑内以堆积状态进行气料换热过程,移到预热器内在悬浮状态下进行,使生料能够同窑内排出的炽热气体充分混合,增大了气料接触面积,传热。
3路上下限报警输出 可配接各种热电偶热电阻,带485通讯功能标准MODBUSRTU协议具体的回转窑无线测温系统详细参数,和产品外形尺寸安装图纸可以百度公司网站xasld前后自己补全,手机和电脑均可直接浏览。
免责声明: 本站提供的任何内容版权均属于相关版权人和权利人,如有侵犯你的版权。 请来信指出,我们将于第一时间删除! 所有资源均由免费公共网络整理而来,仅供学习和研究使用。请勿公开发表或 用于商业用途和盈利用途。
本文链接:http://www.erjian.cc/ziyuan/9805.html

发表评论