化粪池的图集化粪池图纸
- 工程资源
- 2024-02-06
- 524
由你拍的应该是集成一体式化粪池,我没有见到蓝图,但是结合我二十年的施工经验看确实是有问题的陕西或者北方地区包括青海甘肃北京新疆内蒙古等省公司都有项目,最近的化粪池施工我见到了几个图纸基本如下自建一体式。
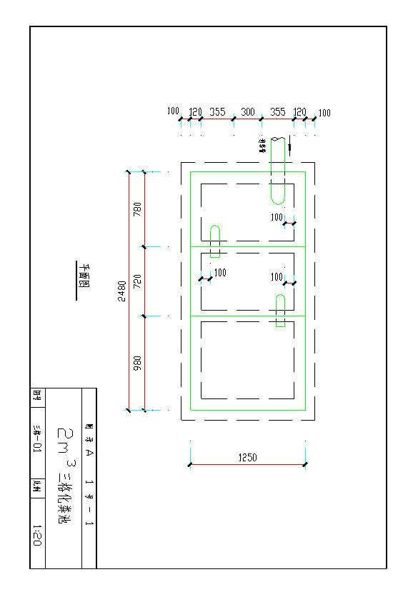
G1150SQF11号钢筋混凝土化粪池,有地下水,顶盖过车,池顶覆土标准图集03S702 钢筋混凝土化粪池。
3根据设计溶解周期和最大容积计算出每周期内的溶粪量例如,如果设计溶解周期为5天,化粪池最大容积为10立方米,那么每个周期内的溶粪量就是10立方米5天=2立方米天4在图纸上使用文本框或其他注释工具添加标注。
12S8 排水工程,247页如下,9#化粪池有效容积80立方,满意请点一下采纳。

化粪池在图纸上图标用符号HC表示化粪池huàfènchí是处理粪便并加以过滤沉淀的设备其原理是固化物在池底分解,上层的水化物体,进入管道流走,防止了管道堵塞,给固化物体粪便等垃圾有充足的时间水解 化粪池。
1首先根据图纸设计化粪池的容量,同时确定化粪池组数和组合方式2下面是定位放线开挖基坑土方时,必须做好边坡支护对于地下水丰富或雨季施工的地区,可在坑底设置集水坑和污水泵,及时排出坑内积水,保证化粪池底座下的。
化粪池施工主要包括土方挖填,化粪池进排水管道等依据先地下后地上的原则从下往上逐层安排施工,施工时先从化粪池基础,后开始化粪池结构地下管线施工化粪池为埋在地下工程根据设计图纸钢筋砼施工分二次浇捣施工。
免责声明: 本站提供的任何内容版权均属于相关版权人和权利人,如有侵犯你的版权。 请来信指出,我们将于第一时间删除! 所有资源均由免费公共网络整理而来,仅供学习和研究使用。请勿公开发表或 用于商业用途和盈利用途。
本文链接:http://www.erjian.cc/ziyuan/20324.html

发表评论